4-Raum Wohnung, 2. Obergeschoss rechts
Beschreibung
4-Raum Wohnung, 2. Obergeschoss rechts, 81,04 m² Ruppertstal 17, 98544 Zella-MehlisInteresse? Wir beraten Sie gerne.
Telefon: (0 36 82) 4 78 72-15 oder per E-Mail an:
Ausstattung
Heizung: Zentralheizung (Gas)
Warmwasser: Zentraler Warmwasserspeicher
Bad: komplett gefliest mit Dusche und WC (innenliegend mit Lüfter)
Küche: Küche mit Fliesenspiegel (mit Fenster), Einbauküche kann von Vormieter gegen Ablöse übernommen werden
Wohnung ist komplett renoviert; Raufasertapete weiß; PVC – Fußbodenbelag
Balkon zur Ostseite
Multimediaanschluss: TV, Rundfunk, Telefonie, Internet bis zu 400 Mbit/s möglich (Privatvertrag über Vodafone / Kabel Deutschland)
Mieterkeller vorhanden
Wäscheplatz vorhanden
Pkw - Stellplätze vor dem Haus und in näherer Umgebung
Wohnung verfügbar voraussichtlich ab 01.05.2026; Besichtigungstermine nach vorheriger Absprache möglich
Kosten
Grundmiete: 438,00 €
NK kalt: 142,00 €
NK warm: 85,00 €
gesamt: 665,00 €
Kaution: 1310,00 €
Provision: keine
Sonstige Kosten: keine
Energieverbrauchsausweis: 108,4 kWh/m² pro Jahr; Erdgas; Bj. 1988
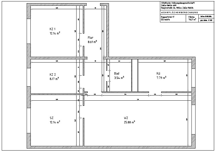
Wohnfläche gesamt: 81,04 m²
Wohnzimmer: 26,03 m²
Schlafzimmer: 12,14 m²
Kinderzimmer 1: 12,16 m²
Kinderzimmer 2: 8,20 m²
Küche: 7,87 m²
Bad: 3,53 m²
Flur: 8,58 m²
Balkon: 2,53 m² (zur Hälfte angerechnet)
Hauptinformationen
Eigenschaften
Nachbarschaft
3 Minuten
1 km
3 Minuten






