3-Raum Wohnung, Dachgeschoss
Beschreibung
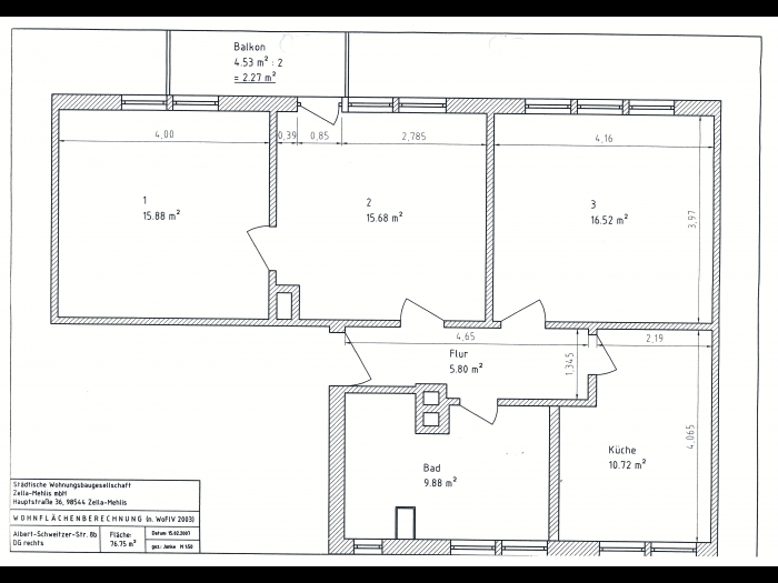
3-Raum Wohnung, Dachgeschoss rechts, 76,60 m² Albert-Schweitzer-Straße 8b, 98544 Zella-MehlisInteresse? Wir beraten Sie gerne.
Telefon: (0 36 82) 4 78 72-14 oder per E-Mail an:
Ausstattung
Heizung: Gas-Etagenheizung
Warmwasser: Gas-Etagenheizung
Bad: komplett gefliest mit Wanne, Dusche und WC, Bad mit Fenster
Küche: Küche mit Fliesenspiegel (mit Fenster) und Fußbodenfliesen, Einbauküche kann von Vormieter gegen Ablöse übernommen werden
Wohnung ist komplett renoviert; Raufasertapete weiß; PVC – Fußbodenbelag
Multimediaanschluss: TV, Rundfunk, Telefonie, Internet bis zu 400 Mbit/s möglich (Privatvertrag über Vodafone / Kabel Deutschland)
Balkon vorhanden, Markise kann kostenlos von Vormieter übernommen werden
Mieterkeller vorhanden
Trockenboden und Wäscheplatz vorhanden
Pkw - Stellplätze vor dem Haus (anmietbar)
Kosten
Grundmiete: 498,00 €
NK kalt: 97,00 €
NK warm: - € *
Miete gesamt: 595,00 €
Kaution: 1.490,00 €
* NK warm: ca. 60,00 -100,00 € (Privatvertrag mit Gasversorger)
* Die Wohnung ist mit einer Gas-Etagenheizung zur Beheizung und zur Warmwasserbereitung ausgestattet. Für die Gasversorgung ist ein privater Vertrag zwischen dem Mieter und dem örtlichen oder einem alternativen Gasversorger erforderlich.
Provision: keine
Sonstige Kosten: keine
Energieverbrauchsausweis: 109,7 kWh/m² pro Jahr; Erdgas; Bj. 1973
Wohnfläche gesamt: 76,60 m²
Wohnzimmer: 16,52 m²
Schlafzimmer: 15,88 m²
Kinderzimmer: 15,68 m²
Küche: 10,72 m²
Bad: 9,85 m²
Flur: 5,65 m²
Balkon: 2,30 m² (zur Hälfte angerechnet)
Hauptinformationen
Eigenschaften
Nachbarschaft
10 Minuten
Details der Immobilie
Login to Save Favorites
Please wait...






